Kalau anda seorang arsitek, harap dilewat saja tulisan ini. Karena ini ‘tulisan berbagi pengalaman’ bagi non-arsitek yang ingin mencoba membuat rumah kayu rancangan sendiri. Ilmunya ringan-ringan aja sih … ditulis dari pengalaman seru membangun Kabin Putih Lembang; Kabin Airbnb kami di Lembang.
Pertama-tama, soal harga. Rumah kayu bukan langsung berarti lebih murah dari rumah beton, ya. Harga per meter persegi rumah kayu yang terbuat dari kayu kelas menengah, seperti mahoni, bisa dibilang mirip dengan rumah beton menengah/standar. Kalau rumah kayu yang terbuat dari kayu kelas atas, seperti kayu jati, bahkan lebih mahal daripada rumah beton lux. Yah begitulah gambarannya.
*Berapa harga bangunan beton? Silahkan googling dengan keywords ‘harga bangunan per m2’
Kalau harganya sama saja dengan rumah beton, kenapa juga mau membangun rumah dari kayu?
Nah, ada banyak alasan sebenarnya; udara lebih sejuk, suasana lebih alami, nilai estetika yang unik dan sebagainya.
Tapi untuk saya dan istri, alasan paling utama adalah karena kami membangun di Lembang, Bandung Utara. Kawasan ini adalah daerah penyerapan air untuk Bandung Raya. Membangun rumah panggung kayu (elevated) menimbulkan dampak negatif yang minimal terhadap serapan air. Perasaan tidak terlalu menggangu fungsi alam yang sangat penting di sana, membuat tidur lebih nyenyak.
Lanjut, ya. Seperti saya tuliskan di blog post sebelumnya, saya tidak memiliki latar belakang pendidikan arsitek, sehingga proses perancangan dan pembangunan Kabin Putih bisa dikatakan ‘otodidak’. Tapi tentu bukan berarti tanpa guru dan alat bantu.
Guru saya adalah rekan saya yang ahli bangunan kayu di Jepara dan sebuah situs bernama houzz.com. Sementara, alat bantu saya adalah aplikasi bernama SketchUp Make –aplikasi modeling 3D dengan UI/UX yang sangat intuitif dan mudah digunakan. Silahkan download di sini. Gratis kok 🙂
Sebelum mulai merancang, wawasan saya tentang arsitektur saya upgrade dulu di houzz.com. Situs ini memang bikin betah banget. Di dalamnya berbagai macam manusia menceritakan cara membangun rumah, mendesain taman, berbagi tips, saling berinteraksi, bahkan berjualan jasa dan barang. Tapi untuk saya, fitur mengkoleksi foto sebagai bahan inspirasi sudah cukup memadai. Yang penting saya punya banyak referensi arsitektural dan desain interior yang memadai untuk membuat bangunan yang saya inginkan.
Begitu gambaran di kepala tentang rumah yang saya inginkan sudah mulai jelas, saya mulai merancang dengan menggunakan SketchUp Make. Catatan dikit, walaupun saya bukan arsitek, tetap saya adalah ‘mantan’ desainer. Jadi logika menggunakan aplikasi perancangan ternyata masih nempel di kepala. Bagi teman-teman yang memang tidak punya basis perancangan sama sekali, gak ada salahnya minta tolong arsitek atau teman yang memang punya basis ilmu merancang. Agar hasil akhirnya tidak terlalu jauh dari imajinasi yang ada di dalam kepala.

Sebenarnya saya sempat membuat tiga rancangan rumah. Tapi ternyata karena saya, sangat awam dalam menaksir harga bangunan, maka dua rancangan saya terbukti terlalu mahal untuk saya bangun. Pada akhirnya saya meminta teman saya di Jepara untuk memberikan rancangan dasar (ukuran dasar bangunan dan spesifikasi kayu) sebagai patokan saya mendesain. Dari rancangan dasar itulah, Kabin Putih saya mulai rancang. Dengan begini, harga akhir bangunan kayu yang saya rancang, tidak terlalu jauh dari perkiraan harga seharusnya.
Setelah rancangan SketchUp saya mewujud cukup meyakinkan, saya lalu mengirimkan berkas rancangan tersebut via internet ke teman saya yang ahli bangunan kayu di Jepara. Proses menghitung kebutuhan kayu, perbaikan struktur bangunan, perhitungan kebutuhan bahan, tanya jawab mengenai teknik finishing yang diinginkan, serta perkiraan waktu pembangunan, dsb –menghabisakan waktu sekitar seminggu.
Ketika semua perhitungan terkait teknis dan biaya sudah disepakati antara saya di Bandung dan teman saya yang kontraktor di Jepara, maka kontrak segera kami tanda tangani. Alhamdulillah, waktu itu berselang seminggu saja , teman saya langsung menemukan lahan kayu produktif di sana yang siap dibeli, dipotong dan diproses sesuai kebutuhan rancangan Kabin Putih.

Setelah pohon-pohon kayu ini dipotong, selanjutnya masuk ke proses pembahanan, atau proses mengubah kayu menjadi ‘bahan’ atau material terpotong yang sudah siap pakai. Proses pembahanan ini sebenarnya bisa selesai dalam waktu di bawah seminggu. Tapi ini sangat tergantung dari kosong atau tidaknya bengkel pembahanan yang ada di sana.
Kembali, kami cukup beruntung, karena antrian bengkel pembahanan saat itu sedang tidak terlalu panjang. Sehingga kayu-kayu gelondongan itu bisa segera dipotong menjadi balok dan papan sesuai kebutuhan rancangan Kabin Putih.

Kabin Putih dirancang sebagai bangunan knock down –mirip sebuah mainan Tamiya raksasa. Bedanya bangunan ini tidak diproduksi masal, walau tetap mampu dipindahkan lokasinya jika diperlukan. Sehingga proses selanjutnya setelah proses pembahanan adalah pembuatan bagian-bagian bangunan.

Semua struktur bangunan diukur, dipotong lalu ‘fitting‘ dengan seakurat mungkin. Sebisa-bisanya ketika bangunan sudah sampai di Lembang nanti, tidak ada lagi perubahan mendasar atau revisi ukuran –yang tentu akan sangat menyusahkan jika terjadi di Lembang.

Selain struktur, panel-panel dinding juga diproduksi di Jepara. Panel-panel nanti tinggal dipasangkan untuk mengisi ruang antara struktur. Ukurannya tidak terlalu besar, diberi kode posisi pemasangan dan sudah dirancang agar water-proof.

Sejak awal saya memang menginginkan agar finishing panel dinding kabin putih tidak menggunakan pelitur gelap seperti kebanyakan rumah kayu tradisional. Seperti namanya ‘Kabin Putih’, saya menginginkan finishing warna putih agar atmosfir di dalam kabin terasa lebih ringan, lebih lega dan lebih modern.
Tantangannya adalah finishing warna putih yang terlalu pekat justru akan menghilangkan lukisan khas urat kayu yang harusnya jadi keunggulan rumah kayu.
Alhamdulillah, pada saat memulai proses pembahanan kami mendapatkan lahan kayu yang memiliki warna bawaan yang berbeda-beda. Ini akan kami jadikan point of strenght si Kabin Putih. Sehingga kami lalu sepakat untuk mencobakan teknik white wash finish sebagai teknik finishing keseluruhan dinding kabin.

Keseluruhan proses –dari pencarian pohon kayu, pembahanan kayu, finishing dan fitting– alhamdulillah terhitung cepat. Hampir semua proses berjalan lancar dan komponen-komponen Kabin Putih sudah siap dibawa ke Lembang dalam waktu 45 hari saja. Berarti saatnya mempersiapkan pekerjaan utama di Lembang: Pondasi.


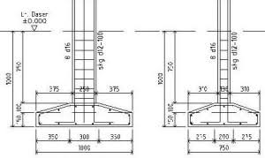
Rumah knock-down ini menggunakan 24 pondasi cakar ayam. Pondasinya terhitung boros untuk standar bangunan kecil. Hal ini disebabkan karena kondisi tanah Lembang yang sangat gembur. Untuk kami, rasanya lebih baik banyak mengeluarkan effort di depan daripada nanti jadi punya rumah miring seperti di Dufan.

Pondasi-pondasi ini ditanam sekitar satu meter ke dalam tanah, dan sebaiknya dibiarkan selama paling tidak satu minggu agar terjadi pemadatan tanah secara alami. Di beberapa titik pondasi sengaja diberikan hook besi beton untuk mengikatkan pondasi dengan struktur landasan bangunan kayu.

Ketika pekerjaan pondasi di situs sudah selesi, maka seluruh komponen kayu dibawa dari Jepera ke Lembang. Proses ini memakan waktu sekitar sehari penuh karena truk yang membawa kayu-kayu ini ‘merayap’ cukup jauh ke dataran tinggi Parahyangan.

Sesampainya di Lembang, kayu-kayu diturunkan dari truk. Setiap komponen dipisah-pisah dan disusun di sisi kiri-kanan dan depan-belakang lahan, untuk memudahkan proses merangkai beberapa hari ke depan. Prosesnya mirip dengan merangkai model mainan Tamiya, bapak-bapak mantan Tamiya Modelers, besar kemungkinan akan senang pekerjaan ini 🙂

Berbeda dengan bangunan beton yang memiliki konstruksi menyambung dari dasar pondasi sampai ke bangunan, rumah kayu knock down seperti ini sebenarnya hanya ‘diletakkan’ di atas fondasi. ‘Konstruksi lepas’ seperti ini merupakan kunci kemampuan tahan gempa dari rumah kayu.
Jangan terlalu khawatir juga, walau cuman diletakan di atas pondasi-pondasinya, rumah kayu ini tidak akan ada yang mencuri kok. Karena beratnya sepuluh ton! Sejauh ini, si Kabin putih sudah survive, dua badai angin besar dan sebuah gempa bumi di Lembang. Alhamdulillah.

Target proses perangkaian struktur terhitung cepat. Hanya dua belas hari. Dan memang eksekusinya sangat cepat. Foto di atas ini adalah foto hari ke-dua. Ini bisa dilakukan karena sebenarnya semua struktur kayu ini ukurannya sudah pas –‘kan sudah fitting sebelumnya di Jepara. Prinsipnya sama dengan Tamiya, jangan sampai pasang komponen di tempat yang salah. *Kalau salah, repot banget. Karena komponen terbesar, panjangnya 8 meter, bro 🙂

Untuk meminimalisir rengkahan kayu, kebanyakan sambungan struktur Kabin Putih menggunakan pasak kayu (dowel) sebagai pengganti paku. Kecuali, sambungan-sambungan utama yang menggunakan drat besi.
Kayu-kayu ini juga sebenarnya sudah melalui proses treatment anti-rayap dan sudah di-oven di Jepara agar kayu tahan lama dan lebih kuat jika menghadapi perubahan cuaca dan suhu. Tapi tetap sih, yang namanya rumah kayu jangan disamakan dengan rumah beton dan semen. Setiap ada perubahan cuaca ekstrim, ada saja kemungkinan jendela atau pintu yang berubah jadi agak seret.
Kalau menurut teman saya di Jepara, rumah-rumah di kampung yang terbuat dari kayu mahoni dan kayu weru biasanya bisa bertahan lebih dari seratus tahun. Mungkin ini berhubungan dengan densitas serat kayunya yang cukup padat dan kebetulan kayu weru adalah kayu kelas menangah yang punya sifat mirip kayu jati –tahan rayap!
Bicara tentang rayap, salah satu tetangga saya di Lembang adalah ahli tanaman. Dia memberi kabar baik waktu saya sedang sedang mengawasi proses perakitan Kabin Putih. Dia bilang ternyata di Lembang tidak ditemukan koloni rayap. Sebagai wilayah yang terletak cukup tinggi di atas permukaan laut dan memiliki temperatur rata-rata yang lebih dingin dari Kota Bandung, Lembang ternyata terlalu dingin untuk menunjang kehidupan koloni rayap. Jadi ternyata Lembang itu termites free –bebas rayap.

Oh iya. Semua pekerjaan perakitan ini akan lebih cepat jika tersedia alat-alat pertukangan elektrik seperti grinder, sender, gergaji elektrik, dsb. Oleh karena itu, sebelum pekerja-pekerja dari Jepara datang ke situs, sebaiknya kita memastikan bahwa mereka bisa mendapatkan akses ke colokan listrik. Saya akhirnya membeli kabel puluhan meter, untuk menumpang nyolok ke sebuah rumah lain yang lokasinya agak jauh di utara Kabin Putih.
Jika tidak ada colokan listrik sama sekali di sekitar situs? … Saya akan menyarankan untuk menyewa generator listrik. Karena perbedaan waktu pengerjaan tanpa alat bantu listrik akan lumayan lama. Ujung-ujungnya biaya pembangunan akan jauh lebih mahal. Enggak mau, kan? cring-cring…
————-
By the way, ternyata tulisan ini panjang banget ya. Saya bagi jadi tiga bagian aja, deh. Capek juga nulisnya … hehehe.
Dengan ini bagian ke-2 saya sudahi sampai di sini, ya. Sampai ketemu di bagian ke-3, tentang perakitan akhir, cerita tentang pemilihan jenis kayu dan finishingnya sampai furnishing. Salam kayu!

Wooww that’s so inspiring me.To build a new home from the first time is so hard. You must to think all about the building from the first. Get helpfrom the architect is the best way for that. tedbiesterbos.nl
SukaSuka
Pak, apakah bisa sharing nama tukang kayu di Jepara? Kebetulan saya baru beli lahan kecil dekat daerah Sukapura. Ingin bangun rumah kayu, selama ini arsitektur trend yg saya lihat adalah rumah minimalis, bukan selera saya. Mohon info di email ke my.locomocion@gmail.com makasi banyak sebelumnya. Bu Mien.
SukaSuka